OTHENTIC PATRIMOINE Agence
Télécharger la fiche

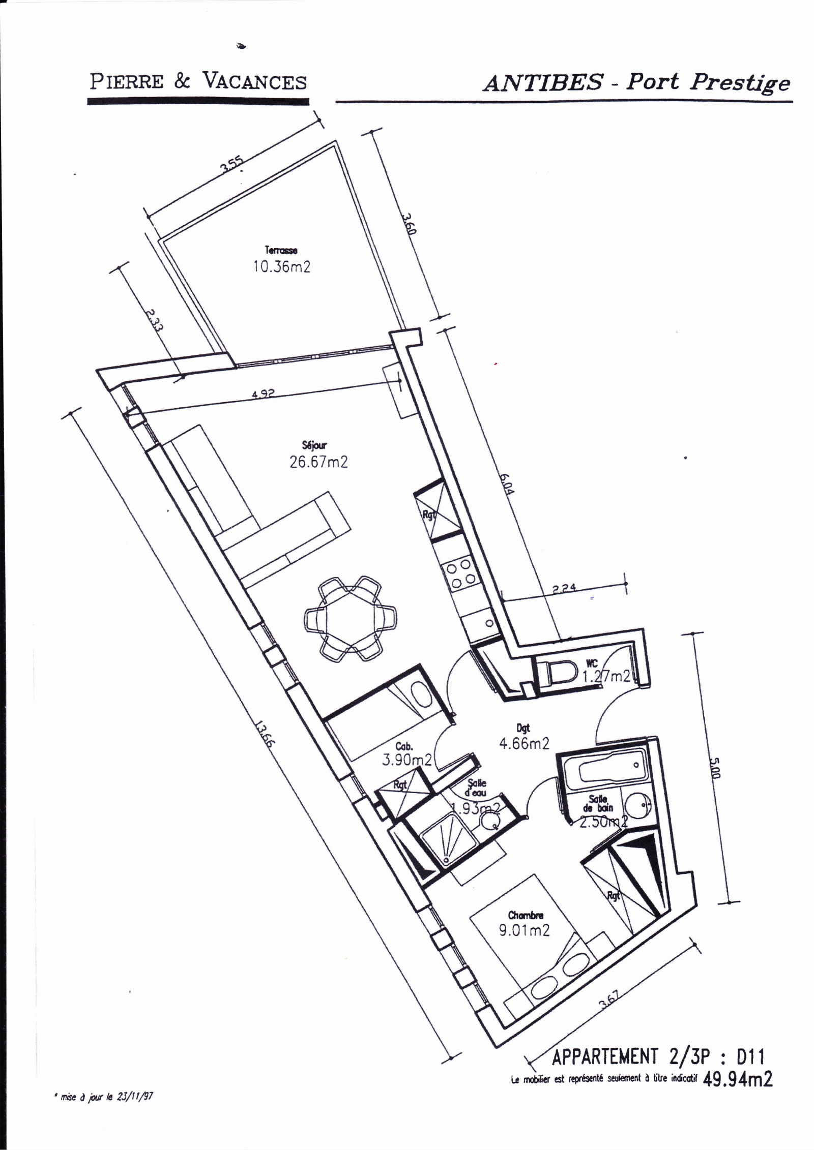
Appartement 3 pièce(s) 2 chambre(s) 50.1 m²

Antibes (06600)
319 640 € Référence 15

A propos de ce bien

Antibes – Pierre & Vacances Premium Port Prestige | Appartement T3 avec balcon et parking

À vendre, au cœur d’Antibes, dans la prestigieuse résidence Pierre & Vacances Premium Port Prestige, découvrez ce bel appartement T3 de 50,1 m², prolongé par un balcon de 11 m² et vendu avec place de stationnement couverte.

Ce bien représente une opportunité patrimoniale rare, au sein d’une résidence premium idéalement située à proximité immédiate du port Vauban, des plages, de la vieille ville, des restaurants et des commerces du centre-ville.

Les caractéristiques du bien

  • Type : Appartement T3

  • Surface habitable : 50,1 m²

  • Balcon : 11 m²

  • Parking couvert inclus

  • Prix de vente : 319 640 €

  • Loyer annuel garanti : 13 806 € net de charges

  • Rentabilité : 4,32 %

  • Taxe foncière : 590 € / an

  • Bail commercial en cours jusqu’en octobre 2029

Un investissement sécurisé et sans contrainte

Ce bien est exploité dans le cadre d’un bail commercial avec Pierre & Vacances, garantissant à l’investisseur :

  • un revenu locatif stable et sécurisé

  • un loyer net de charges

  • une gestion professionnelle assurée par un opérateur reconnu

  • une exploitation simplifiée, sans souci de gestion courante

Une résidence de standing

La résidence Pierre & Vacances Premium Port Prestige séduit par son emplacement exceptionnel et ses prestations de qualité :

  • piscine extérieure

  • espace bien-être

  • jardins paysagers

  • environnement premium, au cœur de l’une des destinations les plus recherchées de la Côte d’Azur

Un emplacement stratégique

  • à deux pas du port Vauban

  • à proximité immédiate de la vieille ville d’Antibes et du marché provençal

  • proche des plages, commerces et restaurants

  • à seulement 25 minutes de l’aéroport international Nice-Côte d’Azur

Pourquoi investir ?

Cet appartement réunit les fondamentaux d’un investissement patrimonial de qualité :

  • adresse premium

  • résidence haut de gamme

  • loyer sécurisé

  • rentabilité attractive

  • parking inclus

  • forte attractivité touristique et patrimoniale

Une opportunité idéale pour diversifier votre patrimoine dans l’un des secteurs les plus prisés de la Côte d’Azur.

Pour plus d’informations ou organiser un échange sur ce bien, contactez-nous dès maintenant.

Caractéristiques de ce bien

  • Surface 50,10 m²
  • carrez 50,10 m²
  • séjour 27 m²
  • 2 chambre(s)
  • 1 salle(s) de bain
  • 1 salle(s) d'eau
  • construit en 1989
  • cuisine américaine (équipée)
  • exposition Sud-Est
  • 4 niveau(x)
  • 1er étage
  • 4 étage(s)
  • ascenseur
  • vue coté port
  • balcon
  • accès handicapé

Diagnostics énergétiques

DPE
GES
DPE en cours

Informations financières

Prix de vente honoraires TTC inclus 319 640 €
Taxe foncière annuelle 590 €

Informations de copropriété

Copropriété Oui
Lot n° 1193-04
Nombre de lots 41
Plan de sauvegarde Non
Statut du syndic Pas de procédure en cours

Calcul des mensualités

* Champs obligatoires